Noordam
De ms Noordam, gelanceerd in 2006, is het meest recente schip in onze bekende Vista-klasse. Het schip is vernoemd naar het noordpunt van een kompas en beschikt over geavanceerde technologieën en milieunormen, waaronder een diesel-elektrische krachtcentrale voor optimaal energieverbruik en een Azipod aandrijfsysteem voor uitstekende manoeuvreerbaarheid.
Aan boord van de ms Noordam treft u museumwaardige kunstwerken, zoals een olieverfschilderij van de stad Utrecht uit 1842, evenals hedendaagse kunstwerken, waaronder foto’s van bekende muzikanten als Dizzy Gillespie en BB King. Een van de meest waardevolle stukken aan boord is een opmerkelijke ingelegde kist, omringd door 17e-eeuwse gesneden houten barokke kolommen. Deze kist, vervaardigd in 1885 in Duitsland, is versierd met ivoor en edelstenen. Verken de kunstcollectie van de Noordam met behulp van een iPod-gids voor een volledige rondleiding aan boord. De ms Noordam belichaamt klassiek en stijlvol reizen op zee, met hedendaags comfort en moderne voorzieningen.
De elegante ms Noordam biedt een sfeer van comfort, ruimte en rust terwijl u tussen 2008 en 2009 naar zonnige bestemmingen in het Caribisch gebied of het romantische Europa vaart.
Noordam, kleinschalig en sfeervol
De Noordam biedt een intieme en hoogwaardige cruise-ervaring en is een zeer gewaardeerd schip uit de Vista-klasse van Holland America Line. Ontdek de talloze geneugten van een kleiner en intiem cruiseschip, waar persoonlijke aandacht en een geweldige sfeer centraal staan. Bewonder de indrukwekkende ingang van het Atrium met drie niveaus en een prachtige kristallen kroonluchter.
De hutten zijn ontworpen om volop comfort te bieden en zijn beschikbaar in drie categorieën: binnenhutten, buitenhutten met een raam en balkonhutten. Daarnaast zijn er ook suites, zoals de Penthouse Verandah Suite, Deluxe Verandah Suites en Superior Verandah Suites.
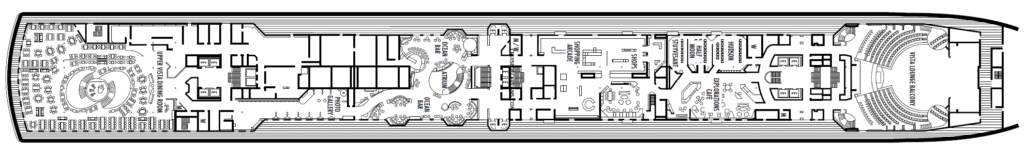
Wat is er te doen op de Noordam
- Northern Lights Nachtclub
- Pianobar
- Explorations Lounge
- Sportsbar
- Culinary Arts Center
- Greenhouse Spa en Salon
- Signature Shops
- Fitness Center
- Explorations Cafe
- Club HAL
Restaurants aan boord
Op de Noordam is er een gevarieerd aanbod aan restaurants, bars, clubs, lounges, een casino, shows in Broadway-stijl, 2 zwembaden, waarvan één met een glazen schuifdak en een belastingvrije winkelgalerij. Foodies zullen massaal naar het Culinary Arts Centre komen, met een ultramoderne keuken, speciale gastronomische presentaties, kooklessen en wijnproeverijen.
Vista Dining Room: een eetzaal met een onberispelijke service en een uitgebreide wijnkaart. Vijfgangenmenu’s met keuze uit de continentale keuken of vegetarische en dieetgerechten.
Pinnacle Grill: in deze intieme gelegenheid kunt u terecht voor een stijlvol diner met verfijnde gerechten. Reserveren verplicht. Sterling Silver handgeselecteerde kwaliteitsbiefstuk, verrassende zeevruchtengerechten en een keur aan wijnen die door Wine Spectator als ‘excellent’ betiteld werden, alles geserveerd in een decor met Bvlgari® serviesgoed, Riedel® glaswerk en Frette® tafellinnen
Lido Restaurant: biedt u een ontspannen sfeer van het ontbijt tot en met het diner en een ruime keuze verse, op bestelling bereide specialiteiten.
Het door Food and Wine Magazine gepresenteerde Culinary Arts Center: onze moderne demonstratiekeuken die interactieve kooklessen voor fijnproevers aanbiedt onder leiding van onze eigen chef-koks of culinaire gasten
Explorations Cafe, gesteund door The New York Times: een koffielounge in een comfortabele omgeving waar u toegang hebt tot een uitgebreide bibliotheek, kunt surfen op internet en u e-mails kunt lezen of gewoon rustig de krant kunt lezen.
Shows en vermaak
Bars, lounges en het zeer gewilde Crow’s Nest, bieden de ideale plek voor een drankje en gezelligheid.
Relax in de Greenhouse Spa & Salon, met professionele schoonheids- en wellness behandelingen.
Neem een yogales in de veelzijdige gym of ren een rondje op het Promenade-dek rondom.
Daarnaast is er een fraaie kunstgalerie en een internet kantoor.
Geniet iedere avond van een wervelende show in Las Vegasstijl.


























